TrovaImmobili, il circuito per scoprire tutte le case in vendita di Modena.

PIANO TERRAPIANO PRIMO
Imposta i filtri di ricerca
Menù disattivato
Provincia di Modena
Vedi elenco zone disponibiliVedi elenco zone disponibili
-
-
Affina la ricerca con ulteriori parametri altri parametri di ricerca
d.a.c.
CERCA

Modena (Madonnina)

Capannone

MADONNINA CAPANNONCINO-LABORATORIO con APPARTAMENTO
Stampa scheda immobile
VP2832-B Modena MADONNINA
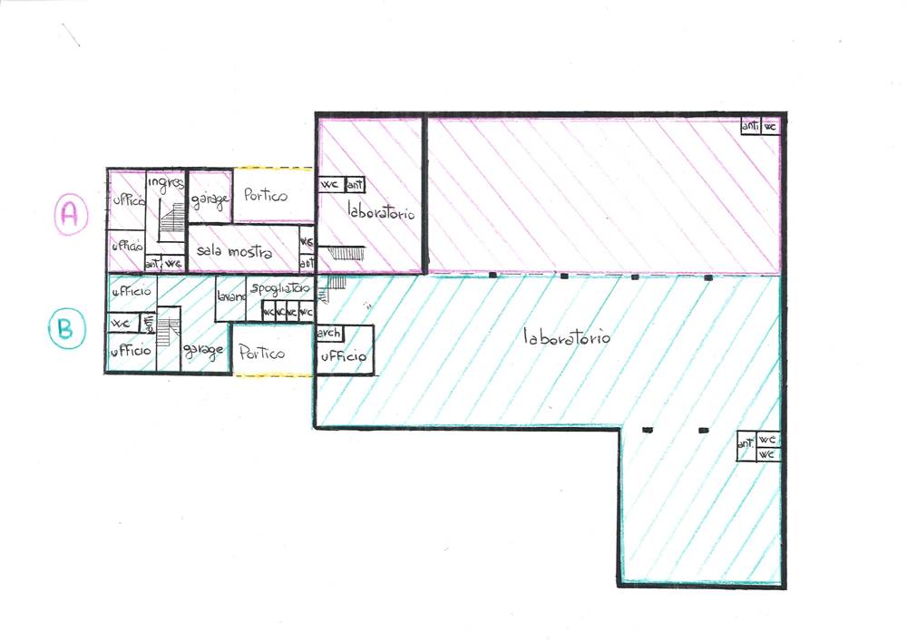
Proponiamo in vendita una porzione di fabbricato di circa 1175 mq. disposta su P.T. e P.1. attualmente occupata, costituita da un capannone/laboratorio, locali ad uso uffici, spogliatoi, servizi, un appartamento di mq. 150 e un garage oltre ad area cortiliva.
Classe: in fase di valutazione. Richiesta euro 550.000 con possibilità di acquisto di altra porzione di fabbricato adiacente (vedi rif. VP2832-A)

Caratteristiche

Codice
VP2832-B
Prezzo
€ 550.000
Mq
1175
Classe
In fase di valutazione
Locali
10
Box
1
Stato Immobile
Mediocre
Piano
Piano Terra
Pavim. Bagno
Ceramica
Pavimento
Marmo
Per informazioni
Studio I Portici srl
Studio I Portici srl
Viale Corassori, 72 - Modena (MO)
Tel. 059 2929563
Invia Email
Codice:
Nominativo: *
Telefono: *
Email: *
Dettagli richiesta: *
Autorizzo il trattamento dei miei dati personali in base Regolamento UE n. 679/2016
Invia
Condividi

TrovaImmobili, il circuito per scoprire tutte le case in vendita di Modena.

TrovaImmobili.it - Portale gestito da Cataimm s.r.l. Vai Giardini 476/N 41124 Modena - Tel. 335/8381584 - P.IVA 02981280361 - Privacy Policy - Revoca consensi
Cookie preference