TrovaImmobili, il circuito per scoprire tutte le case in vendita di Ravenna.

Imposta i filtri di ricerca
Menù disattivato
Provincia di Ravenna
Vedi elenco zone disponibiliVedi elenco zone disponibili
-
-
Affina la ricerca con ulteriori parametri altri parametri di ricerca
d.a.c.
CERCA

Cervia (Pinarella) Viale Puglie

Appartamento

Appartamento con terrazzo Pinarella
Stampa scheda immobile
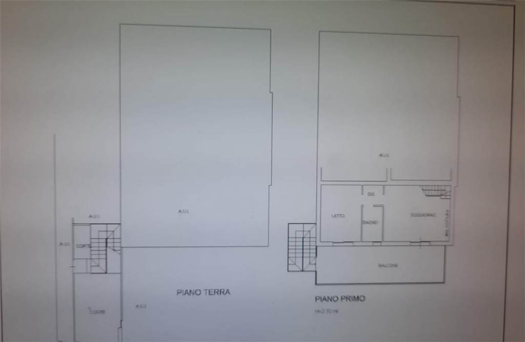
Proponiamo in vendita un appartamento moderno costruito nel 2015, situato al primo piano e disposto su due livelli, in zona Pinarella. L’ingresso indipendente conduce a un piccolo giardino privato e poi all’abitazione, caratterizzata da ambienti luminosi e ottime finiture. Al primo livello si trovano un’ampia zona giorno con accesso al grande terrazzo vivibile e un bagno. Al piano superiore si sviluppa la zona notte con tre camere matrimoniali, secondo bagno e pratico armadio a muro.

L’immobile è dotato di riscaldamento autonomo a pavimento, aria condizionata, tapparelle in alluminio, impianto d’allarme, videocamere, tetto in legno a vista e garage interrato motorizzato. Soluzione ideale per chi cerca comfort, indipendenza e spazi esterni.

Vani:
• Ingresso indipendente
• Giardino privato
• Soggiorno con cucina
• 3 camere matrimoniali
• 2 bagni
• Ampio terrazzo
• Armadio a muro
• Garage interrato

Prezzo richiesto euro 500.000.
Per informazioni e visite contattaci.

Caratteristiche

Codice
MIMA139
Prezzo
€ 500.000
Spese cond.li
€ 600 / anno
Mq
95
Classe
E
Locali
5
Camere
3
Bagni
2
Box
1
Mq Box
15
Stato Immobile
Nuovo
Grado
Signorile
Posizione
Mare
Panorama
Vista Aperta
Piano
Primo
Totale Piani
Due
Lati Liberi
3
Giardino
Privato
Arredi
Arredato
Tipo Soggiorno
Soggiorno
Tipo Cucina
Semi Abitabile
Riscaldamento
Autonomo
Tipo Riscaldam.
Caldaia a Condensazione
Tipo Impianto
Pavimento
Fonte Energetica
Metano
Acqua Calda
Autonoma
Accessori
Antifurto, Aria Condizionata, Doppi Vetri, Passaggio Automobilistico, Passaggio Pedonale, Porta Blindata, Video Sorveglianza

Planimetrie

Posizione su mappa

Viale Puglie , Cervia (RA)
Per informazioni
Casafin sas
Casafin sas
Via Valdrighi, 101 - Modena (MO)
Tel. 339 6473301
Invia Email
Codice:
Nominativo: *
Telefono: *
Email: *
Dettagli richiesta: *
Autorizzo il trattamento dei miei dati personali in base Regolamento UE n. 679/2016
Invia
Condividi

TrovaImmobili, il circuito per scoprire tutte le case in vendita di Ravenna.

TrovaImmobili.it - Portale gestito da Cataimm s.r.l. Vai Giardini 476/N 41124 Modena - Tel. 335/8381584 - P.IVA 02981280361 - Privacy Policy - Revoca consensi
Cookie preference